很多业主在装修的时候,想把喜欢的元素和东西都放在空间中,这样会造成空间“拥挤”,说白了空间的主角是人,而不是那些家具、摆饰,客厅也是一样的,不要让太多的无用的家具和饰品占据你的空间感。少即是多,强调的就是空间感,只需以客厅+茶几为主即可,简单饰品点缀就好,要的就是一份空间感带来的舒畅。
??

??
给人的感觉是安静的,全屋地面铺设浅色地板,原木吊顶和护墙板上下对应,组合沙发装饰同色系地毯,以温馨为主题,用原木色营造呼吸感。
卧室是家居生活环境中,不可缺少的重要空间。卧室的装修好坏,直接影响我们睡眠质量的好坏。有一个温馨舒适的卧室是每个人的追求,这可使我们劳累一天的身体和心灵得到休息。
??

??
纯净的蓝色调下粉色的融入增添了柔和与舒适的感受,手工编织的装饰,质朴又自然,显得更为静谧优雅,营造出清爽柔和的睡眠环境。
??

??
设计师借助原木的温婉、棉麻的素净、鲜活的植物等元素,让室内充盈明澈清新的北欧风情。
??

??
裸粉色是最好的点缀色,提亮空间,又给人空间恰到好处的温暖,空间也顿时多了几分活泼之气。
??

??
在视觉上舍弃性冷淡的北欧风,通过对色块的巧妙应用,让空间散发耀眼和希望,给人带来意想不到的视觉冲击力。
餐厅是一家人享受美妙用餐时光的重要场所,好的设计能让用餐氛围更加温馨,让享用美食也成为一种无上的乐趣,而每一种风格的餐厅,都显示出其主人的不同品味与性格。
??

??
格局开阔的餐桌布置,使整个空间呈现低调舒适的氛围,而挂画的选择,更增添了一点灵气与生命力。餐厅后面大型的餐边柜,不仅解决了储物问题,并且利用一些小饰物装点空间,小巧?的?点缀增添空间的精致感。
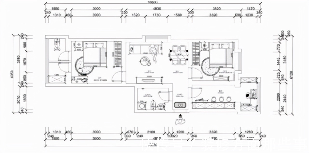
【 空间感|?76平两室两厅房间布局满,但并没有很挤】??

??
?76平米的户型,该户型两室两厅,一厨一卫,面积不大不小,房间布局满,但并没有很挤。
推荐阅读
- 卫生间|129平现代美式三居室,打造出一个舒适又温馨的美式家
- 三居室|118平现代风三居室,一个简单而纯粹还原生活色彩的家
- 郑州|买房月供曝光!郑州最新平均工资8694元,撑得起房贷么?
- 石家庄|144平的面积,无人值守棋牌室,这是如何做到的?
- 简单感|现实的平衡取舍,才是生活之道!143平现代风格设计欣赏!
- 她家148平米,进门就被玄关迷住,不做吊顶跟背景墙,阳台超漂亮
- 修建|精选10套三层户型图纸,占地面积均不足百平,尤其适合新农村修建
- 南通|拍卖成功!江苏南通一处197平住宅192万成交!
- 购房置业|农村建新房就选这套四层别墅,占地100多平,8间卧室人人都有地睡
- 现代简约|青岛房价不是低洼地了,房价高达1.6万一平
