衣区|165㎡一梯一户大平层,改动4处细节换58㎡大横厅,不输别墅
现在带“大横厅”的房子喜欢的人是越来越多,空间明亮又开阔,轻松就能装出豪宅范儿,合肥塘溪津门这套房子就是个典型的例子,58㎡的大横厅越看喜欢,全屋拆掉几墙,立马变身“完美户型”,难怪亲戚朋友串门个个夸!
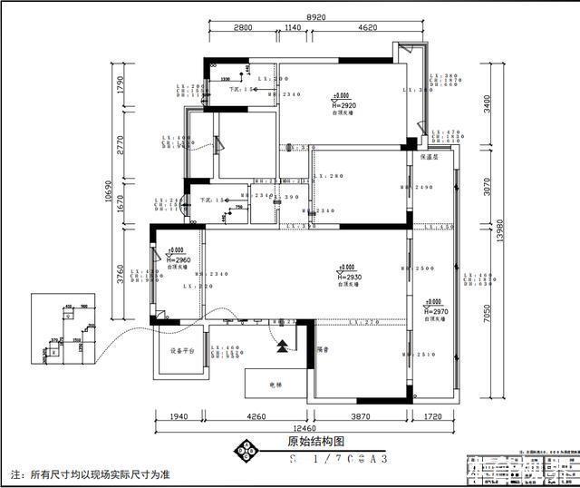
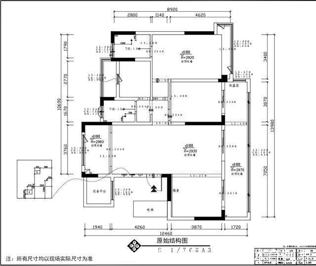
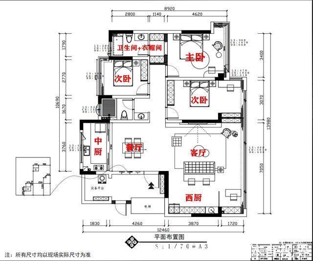
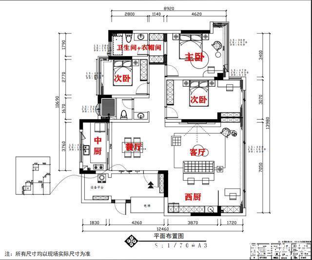
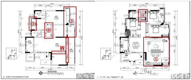
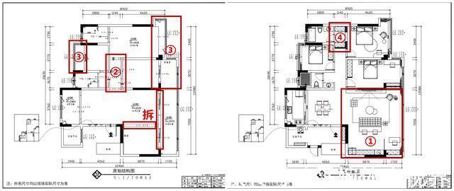
房屋基本信息:户型:三室两厅面积:165㎡小区:合肥塘溪津门

这套房子属于一梯一户的大平层,宽敞高级视野好,住起来一点也不比别墅差,从户型上看,设计师改动了4处小细节,换来了超大横厅布局,赶紧跟你们分享一下!设计亮点:①客厅旁边小房间和阳台全部打通,空间扩大一倍不止;②走廊隔墙全都拆掉,优化家里动线;③次卧和主卧阳台统统包进室内;④主卫外面设计走廊式衣帽间。
客厅自从拆了两堵墙之后,视觉上更加宽敞,采光也是极好的,中间岛台将空间一分为二,隔出个20㎡左右的西厨,实现了中西双厨的设计。

电视背景墙干挂石材,简约大气上档次,右侧阳台打通后设计个开放式储物架,作为展示柜收纳书籍或者收藏品都可以。

客厅最让人注意的还是大西厨,木工打个5.6m长的到顶多功能柜体,柜体深度55cm,从左往右依次是高柜、水吧台+吊柜、冰箱柜,我们一个个来看看。

首先是左边的高柜,内部做了详细的功能分区,收纳各种电器和大件厨具绰绰有余,也能作为家政柜使用,吸尘器拖把集中收纳,拿取方便又能遮丑。
其次就是长2.9m的水吧台+吊柜,上下足足有8个收纳柜,中间留空作为西厨台面,可以煮咖啡做甜品,操作空间很宽敞,另外台面和水槽底部都预留好了插座,考虑得很周到。
最后是冰箱柜了,冰箱位置远离水槽,不用担心潮湿问题,平时拿取食材也不用来回跑,顶部空间也打个吊柜,看起来更具有整体感。
中间位置作为隔断的大理石岛台长2.4m,宽55cm,高1.1m,添加几把高脚凳就成了吧台,增加了与客厅的互动性,坐在这儿边喝咖啡吃甜品边看电视也很惬意。
厨房入户左侧是餐厅的位置,而餐厅和厨房中间有扇玻璃推拉门,保证了空间的通透感,又能隔绝油烟。
厨房面积6.9㎡,L型橱柜长4.4m,吊柜距离台面90cm,侧吸油烟机防止业主会磕碰到头,而他家厨房最让人羡慕的是水槽前面这扇大窗户,光线和视野都很棒。
推荐阅读
- 屋主|56㎡小户型老房改造,小而美的设计!
- 现代风|168㎡现代风,带着浓郁的归属感与愉悦感
- 深色|155㎡简约风,承载着三代人的生活,不花哨让家务少一半
- 混淆感|146㎡北欧经典白色三居室,诠释令人心醉的优雅
- 饱和度|173㎡轻奢新中式,古典和现代的碰撞,唯美浪漫!
- 背景墙|97㎡现代风,以时尚打造空间,以新颖突出特点
- 地板|160㎡四居室,玄关比我家卧室都大,这才是真正的低调奢华有内涵
- 棚户区改造|开盘预告|合肥又有6盘要加推,均价1.39-2.54万/㎡全都有
- 小房间|参观140㎡大婚房,朋友都夸餐边柜有档次,我却更喜欢主卧的飘窗
- |73㎡复古风两居室,年轻夫妻的高品质生活
