衣帽间|84㎡阳光loft,玫瑰金弧形旋梯、水平线性的灯光酒柜墙,超炫酷!
空间是自由的存在,与周边,与人,与思想都应产生联系,而当这三者能够在一起共鸣,再通过时间的加酿,沉淀出自由的精神和灵魂。此刻,再将光影舞动至空间的每一处,它或短暂的停留,或缓缓地轻轻拂过,让每一件器物也得以蜕变出全新的面貌。
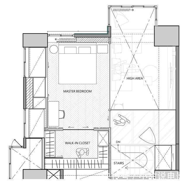
今天小编给大家分享一个光引呈线的时尚loft,坐标台湾新北。本案基地虽不大,但拥有高度优势,因此垂直向量作为运用。以一座玫瑰金弧形旋梯衔接两个楼面、后衬水平线性的灯光酒柜墙,作为楼层上下界定的公、私领域。基本情况地理位置|台湾新北面积|84㎡户型|LOFT主要材料|金属漆、冷喷漆、薄片瓷砖、瓷砖、木地板、玻璃照片版权|PENYHSIEHINTERIORS/摄影师:KyleyuPhotoStuio户型图
一层面积为51.5㎡,以餐桌为空间轴心,设计有开放式厨房、餐厅、客厅、卫生间、洗衣房以及一间卧室。整体布局分区明确,回形动线合理。
二层面积为32.3㎡,设计有宽敞的主卧室以及步入式衣帽间。实景图/一层
入户的左手边为一个隐形的收纳柜,白色的设计与整个墙面融为一体,你看不到任何的花纹和线条装饰,简约优雅。【 衣帽间|84㎡阳光loft,玫瑰金弧形旋梯、水平线性的灯光酒柜墙,超炫酷!】
挑高设计的客厅,电视墙采用了白色系岩板瓷砖,具有通透清爽的观感,而它自然多变的纹理,赋予了瓷砖一丝灵动,又给空间带来悠远缥缈的艺术性,让整体的质感提升。
沙发的后面是水平线性铁件书墙,非常有个性。拥有到顶的落地窗,设计为开放的LDK结构,不失为精致的艺术之美。
淡雅明媚的白色岩板,它的耐用又百搭的质地与无懈可击的质感,给人感觉沉稳之余,又清新脱俗,让郁闷的都市生活不再压抑,感受回归自然的本真。
一层以就餐区为中心,形成了洄游动线,左侧是卫生间和洗衣房,右侧选用了隐形了,保证了空间的整体性。

旋转楼梯,才是时尚Loft的标配,玫瑰金弧形旋梯和水平线性的灯光酒柜墙,弧形曲线透露着优雅性感,钢琴般的酒架柜,彷佛跳动的音符,为整个空间设计加分不少。实景图/二层
二楼保有高度通透感,楼上、楼下犹如堆叠的大小光盒,各式光源在不同时段、角度的交互投射,光影调和的美,似永恒的脉搏,余韵不绝。
人字型拼接木地板流露细致与温暖,缓和着生活的繁忙嘈杂,本一处清净,洗涤凡尘琐事。
推荐阅读
- 屋主|56㎡小户型老房改造,小而美的设计!
- 现代风|168㎡现代风,带着浓郁的归属感与愉悦感
- 深色|155㎡简约风,承载着三代人的生活,不花哨让家务少一半
- 混淆感|146㎡北欧经典白色三居室,诠释令人心醉的优雅
- 饱和度|173㎡轻奢新中式,古典和现代的碰撞,唯美浪漫!
- 背景墙|97㎡现代风,以时尚打造空间,以新颖突出特点
- 地板|160㎡四居室,玄关比我家卧室都大,这才是真正的低调奢华有内涵
- 棚户区改造|开盘预告|合肥又有6盘要加推,均价1.39-2.54万/㎡全都有
- 小房间|参观140㎡大婚房,朋友都夸餐边柜有档次,我却更喜欢主卧的飘窗
- |73㎡复古风两居室,年轻夫妻的高品质生活
