平面|农村盖房单单主体就花费百万,4层带地下室,10卧室这得住多少人

项目名称福建漳州黄家欧式别墅图纸编号1216建筑面积1100㎡基地面积1805㎡占地面积253.3㎡建筑尺寸17.6m×16.3m建筑结构框架结构参考造价110~150万元(不含室内装修费用)别墅概况
总平面示意图
项目场地别墅简介:在各层的功能分布上,业主表示希望能有独立套间的大主卧和地下室,在基础功能之外兼具丰富的娱乐休闲功能。平面布局户型概况:4层 + 地下室 / 5室 2厅 4卫 2厨 1堂屋 1衣帽 1洗衣 2储物 1棋牌室 1影音室 1起居室 1泡茶接待室 1活动室 1禅房 1酒窖 3阳台 1露台
地下室平面图(左下角为北)地下室的功能定位是娱乐、储物,和接待访客。楼梯旁设置较大面积的储藏室,储物功能强大。西侧设置影音室,地下室创造良好的暗光环境。
一层平面图(左下角为北)建筑主体中,主入口位于别墅的西侧,入户的位置根据中式建筑的设计设置堂屋,北侧客厅与餐厅相连两侧通透。餐厅与厨房相连,由于厨房面积宽裕,设置中岛台,极大提高了厨房的实用性,大面积的餐厅可容纳多人用餐。考虑到长辈年迈,一层设置带私厕的长辈房。东侧是棋牌室和公卫。
二层平面图(左下角为北)二层设置单独套间主卧,内设单独的起居室,衣帽间卫生间呢,私密性和实用性极高,储物功能强大。另设一间带阳台的主卧,两间次卧,每个房间均有独立卫生间。
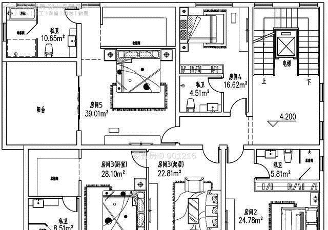
三层平面图(左下角为北)三层功能与二层相近,设置四间卧室。与二层不同的是,三层设置公用的起居室。北侧主卧有独立衣帽间,每个房间都有独立卫生间。
四层平面图(左下角为北)四层除两间带私卫的卧室外,设置健身房,北侧楼顶留出大面积露台。兼具实用和娱乐两重功能,方便衣物晾晒,楼顶露台的私密性也极强。造型设计
建筑整体风格为欧式,立面主要选用暖色系材质,真石漆与石材的搭配,整体风格优雅大气。

建筑的每个立面都做了大面积开窗,西北立面设计最有层次各层阳台的突出和露台的退让使立面层次丰富。

除主体建筑外,西北侧和东南侧都留出大面积庭院,庭院的设计风格同样优雅大气,前后庭院都做了景观喷泉的设计,让院落的观赏性更强,通过设计将建筑和自然景色相搭配,精雕细琢而又不失自然。

屋顶采用坡屋顶,整体造型豪华大气,富有浪漫的韵味。
推荐阅读
- 建房子|面宽11米, 进深16.5米的农村三层别墅, 前后有花院还带车库, 完美!
- 别墅|参观亲戚上海的豪宅,别墅硬是住成农村房,真是糟蹋了好房子
- 购房置业|今年起,农村老家的老房子,统统按照“新规”处理,子女提前知晓
- 修建|精选10套三层户型图纸,占地面积均不足百平,尤其适合新农村修建
- 上海市|2022年农村人要“享福了”?实行按户补贴,跟村民们的房子有关
- 洗衣房|这三款农村四合院设计图让不少城里人羡慕,父母看了也欢喜
- 购房置业|农村建新房就选这套四层别墅,占地100多平,8间卧室人人都有地睡
- 别墅|土豪农村盖大别墅,人人羡慕,如今却成为全村人眼中的大笑料
- 李沧|农村建房不能超过几层?面积是怎么规定的?农村建房的流程及条件一览
- 露台|推荐5款三层别墅设计图纸,最适合农村建的房子
