麻雀|一个人住,怎么舒服怎么来!43㎡,麻雀虽小五脏俱全
每个人都希望拥有独处的空间,面积不需要很大,能满足日常生活即可,没有别人干扰,完全享受属于自己的生活。装修同样如此,不需要考虑其他,完全按照自己喜欢的样子去布置。一个人住,就应该怎么舒服怎么来。接下来分享一套43㎡小户型装修,麻雀虽小五脏俱全,既有生活又有娱乐。▼房屋基础信息项目面积:43㎡项目地址:北京市主创设计:黄英培
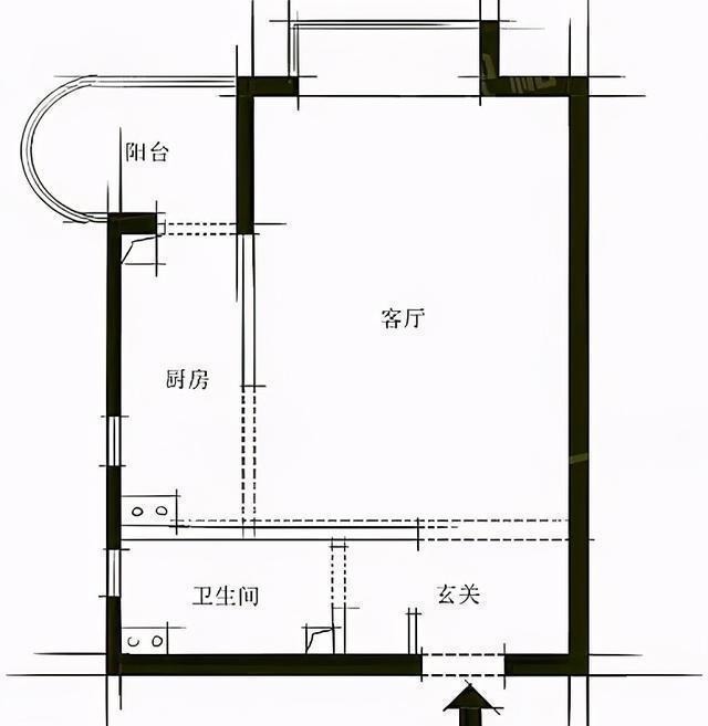
▼原始结构平面图43㎡的开间户型,进门一览无余,毫无私密性可言,同时整体空间利用率也不高。
▼墙体拆改平面图根据屋主需求,重新规划设计,新建墙体将空间分割,提高私密性也完善功能和收纳。
▼家具布置平面图
▼立体布置图
▼改造前图片改造前房屋图片,采光差空间利用率不高,整体缺乏收纳空间很乱,而且厨房过于局促,不利于日常操作。

▼客/餐厅空间空间有限,想同时拥有独立客厅和餐厅还是非常难的,装修采用中岛台设计,以发挥空间最大价值。岛台不仅满足了日常会客、用餐、办公,还可以是厨房操作台的延伸,日常生活还是非常不错的。
岛台一侧新建组合柜,集收纳、展示和电器柜一体,提高居家收纳,又保持空间整洁统一,对于小户型而言再合适不过了。到顶设计不浪费空间,又避免了打扫的不便。
客餐厨一体,空间重叠利用,让原本紧凑闭塞的空间,变得宽松明亮。
▼厨房空间厨房告别了原有局促的格局,整体变得宽松舒适。水槽和灶台一侧,另一侧简单设计矮柜,上方平台刚好用于摆放水壶等家用电器。厨房与阳台利用米色风琴折叠门隔断,灵活性高而且占用空间小,非常的不错。
▼阳台空间弧形的阳台空间,打造成休闲区和瑜伽房,灵活可变的设计,让空间更具弹性。值得推荐的是弧形长凳,可折叠设计,需要的时候展开,不需要的时候收起来摆放在角落,让空间更宽松。
▼卧室空间卧室采用对开门设计,局部嵌入磨砂玻璃,以维持空间采光效果,让客餐厅不那么昏暗。卧室简洁设计,没有太多的装饰。简单的书桌柜设计,一物两用,日常办公、梳妆都可以实现。
空间有限,舍弃电视采用灵活性更高的投影仪,满足日常观影需求。幕布隐藏在书桌柜上方,需要的时候展开,不需要的时候收合。
书桌柜简单布置,开放式收纳柜摆放常用的书籍和物件,墙面以白色网格架收纳,简单实用颜色统一。
推荐阅读
- 小钱|游点好笑!收手机的新方式,一抓一个准!这老师怕是柯南看多了?
- 卫生间|129平现代美式三居室,打造出一个舒适又温馨的美式家
- 三居室|118平现代风三居室,一个简单而纯粹还原生活色彩的家
- 收纳|打柜子不是越多越好,6个地方别随便装,多装一个都闹心
- 智睿|老装修升级计划 篇九十五:魔都二手房全屋灯光改造,给自己一个明亮智能的家!
- |西晒房、东晒房,一个没人要,一个抢着买,有钱没钱万万要选对
- siri|20多块钱,DIY一个米家APP控制的智能吸顶灯,附Siri快捷控制方案
- 家居|定制蝶变,林氏木业孵化出一个什么新物种
- 农村空心村|“空心村”的烦心事,新房没人住,买楼的家庭成为新的困难户
- 化妆台|90后小姐姐独居生活,一个人住26㎡小公寓,太解压了,买个照装
