实用|120㎡三居室,主卧向儿童房借3㎡,完工等于多个衣帽间,太实用了
坐标上海!本案120㎡,为三口之家的新房,之所以分享到大家,有两个关键词,一个是实用,因为全屋的利用率非常高,无论是电视墙打柜子,还是主卧向儿童房借走的3㎡,都让这个家变得与众不同,尤其是后者,完工等于多个衣帽间;至于另一个关键词是美观,整体设计张弛有度,让人看了一见倾心,难怪他家因美观、实用而走红网络,太精致了,不信给各位介绍一下!(图源:鸿鹄设计)

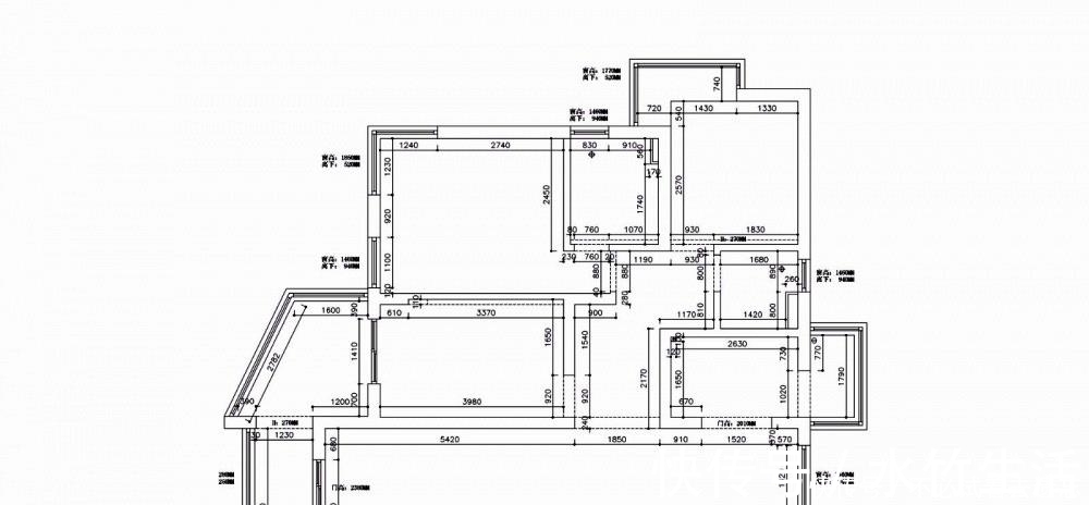
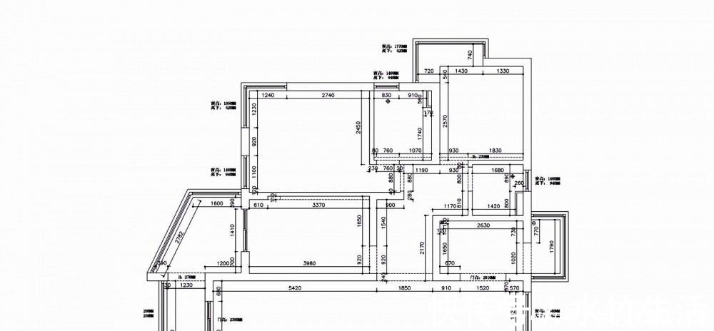
【 实用|120㎡三居室,主卧向儿童房借3㎡,完工等于多个衣帽间,太实用了】户型为三室两厅一厨双卫双阳台,住下三口之家正好,其中长辈房是给父母预留的!
接着看实景!由于本案没有独立玄关,业主就在左侧通往客厅的过道上,定制了一面垂直入户墙面的鞋柜,一来可以适当保证隐私,二来储物问题也就解决了!
右边是沙发墙,选用饰面板作为主要装饰,看着比单纯的只刷漆要更加有质感!
当然,皮质沙发也不错,结合黑色细金属结构的落地灯,整体显得时尚精致,而且装饰画也不错,绚烂的色彩很有视觉冲击力!
与沙发墙相对应的电视墙,业主从实用角度出发定制了一面柜子,这样储物空间大增的同时,看着还特别大气!因为柜面板采用免拉手结构设计,如此干净简洁的柜立面加上明亮的浅色调,看着并不会压抑!
值得一提的是这样的结构是不用买电视柜的,例如本案直接定制一款置物地台,不仅风格上做到了和谐统一,而且不留清洁死角,加上其中嵌入的灯带,看着很有质感!
这个是电视墙左侧的转角空间,考虑到男主有大量的书籍,就在这里定制了一面黑色的开放式书柜,然后以此为基础打造休闲角正好合适!
梳理一下,这个是客厅全景,整个装修虽说定制了不少柜子,但看着并不繁杂,反而干净简洁很时尚!包括天花板适当简化的吊顶也是如此,不过主灯和灯带还是很漂亮的,且刚好呼应地面灰色的大理石瓷砖!
餐厅这里只是简单摆放一款四人位的餐桌椅即可,结合优渥的采光,相信在这里吃起饭菜来心情都会变得更加畅快!
需要补充的是,对面窗户定制了地柜,作为餐柜使用进而解决收纳问题正好!
黑色的餐桌看着蛮精致!
至于桌面的插花点缀在空间中可以为这个家带来源源不断的生机与活力。
推荐阅读
- 屋主|56㎡小户型老房改造,小而美的设计!
- 现代风|168㎡现代风,带着浓郁的归属感与愉悦感
- 装修|淋浴房还可以坐着洗澡,一开始很不理解,装修后才发现太实用了!
- 深色|155㎡简约风,承载着三代人的生活,不花哨让家务少一半
- 混淆感|146㎡北欧经典白色三居室,诠释令人心醉的优雅
- 灰尘|家中阳台不要装推拉门了,装这种更实用个性,不得不感叹太聪明了
- 饱和度|173㎡轻奢新中式,古典和现代的碰撞,唯美浪漫!
- 餐边柜要做成什么样子才实用又好看看看这几款餐边柜设计
- 背景墙|97㎡现代风,以时尚打造空间,以新颖突出特点
- 地板|160㎡四居室,玄关比我家卧室都大,这才是真正的低调奢华有内涵
