x2|5款180平左右的农村二层房屋图,第四款带洗衣房,你有没有喜欢的?
老家建栋房,相信大多数人都因为面积不合适而发愁,喜欢的房子设计有很多,但却不太适合自己家里的面积,接下来小编就介绍5款180平左右的农村二层房屋图,其实在老家建一栋简单实用的小别墅,符合自己的生活需求和审美,好好布局室内,看有没有适合你们家宅基地的?
第一款:农村最漂亮二层欧式别墅设计图及户型图,带车库设计
效果图展示
面宽16.5米(含车库),宅基地小不建车库也可以的,提前了解不吃亏,图纸看了快收藏,许多人还在为找不到好户型发愁,这款漂亮的二层欧式别墅,设计太赞了!大气典雅的装饰,精美华丽的造型,以及别具一格的色彩搭配深受农村朋友的喜爱。
占地面积:16.56m*12.36m,180.366平方米;
建筑层高:二层;
建筑高度:11.398米(含屋顶);
设计功能:
一层户型:客厅、厨房、餐厅、卧室(带卫生间)、卧室、卫生间;
二层户型:小客厅、棋牌室、卧室(带卫生间)x2、卧室x3、卫生间、露台、阳台
户型图展示
户型图展示
第二款:75平方米二层别墅设计图以及户型图,中式风格
效果图展示
效果图展示
效果图展示
这个新中式的房子面积不大,清新自然,风格爽利,而且造型又不复杂,建造成本也不高,非常适合自己建,漂亮又耐看,功能设计非常齐全,布局大方合理,精致户型,动静分明空间,舒适格局,南北通透、四面采光,自在生活清新享受
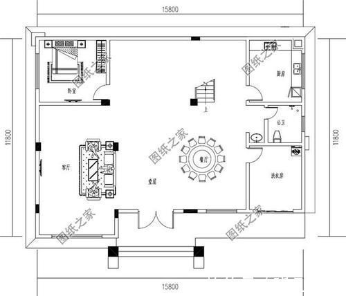
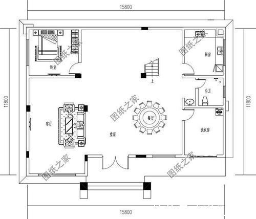
【 x2|5款180平左右的农村二层房屋图,第四款带洗衣房,你有没有喜欢的?】占地面积:15.8m*11.8m,175平方米左右;
建筑层高:二层;
建筑高度:10.2米(含屋顶);
设计功能:
一层户型:堂屋、客厅、厨房、餐厅、卧室、卫生间、洗衣房;
二层户型:客厅、卧室(带卫生间)、卧室x2、卫生间、露台
户型图展示
户型图展示
第三款:面宽15米美观大气的二层复式别墅设计图以及户型图,简约大气
整体为欧式风格,方正的户型,没有过多的装饰,仅一对欧式罗马柱和落地窗就显得格外豪华气派,搭配蓝色瓦片,视觉冲击感更强,看上去色彩更丰富。入户即是客厅,餐厅与客厅之间设有隔断,保证了房间整体的空气清新,两间卧室,都带有通风采光窗,居住环境较为舒适,二层客厅做了挑空设计,加大了整体的视觉效果,三间卧室,足够一家人使用,而且还有空余房间,节假日亲朋好友可以留宿.
占地面积:15m*11.2m,173.28平方米左右;
建筑层高:二层;
建筑高度:10.168米(含屋顶);
设计功能:
一层户型:客厅、厨房、餐厅、棋牌室、卧室(带卫生间)、卧室、卫生间;
推荐阅读
- 卫生间|129平现代美式三居室,打造出一个舒适又温馨的美式家
- 三居室|118平现代风三居室,一个简单而纯粹还原生活色彩的家
- 郑州|买房月供曝光!郑州最新平均工资8694元,撑得起房贷么?
- 石家庄|144平的面积,无人值守棋牌室,这是如何做到的?
- 简单感|现实的平衡取舍,才是生活之道!143平现代风格设计欣赏!
- 她家148平米,进门就被玄关迷住,不做吊顶跟背景墙,阳台超漂亮
- 修建|精选10套三层户型图纸,占地面积均不足百平,尤其适合新农村修建
- 南通|拍卖成功!江苏南通一处197平住宅192万成交!
- 购房置业|180混凝土拌合站
- 购房置业|农村建新房就选这套四层别墅,占地100多平,8间卧室人人都有地睡
