作者:小李说装修
记得以前常常会听说,有人的地方就有中国人,诺大个地球,200多个国家里面,无论是经济条件好点的国家,还是经济条件差的国家,都能见到华人的身影。而被人称为“壕”国的迪拜,更是少不了许许多多的华人。

本案介绍的这套400平米的现代风格装修设计,就是一位在迪拜的华人,设计结合了当地的一些特色和装修习惯,再结合国内的一些情怀,营造出一个即温情又高级的现代居家氛围。

设计简介:
设计风格:现代风格
实际面积:两层400
空间格局:5房2厅
设计师:木婉清
项目位置:迪拜
装修造价:预算费用30.38w
01原始结构图


这是一套两层的复式楼格局,接手的时候,墙体格局基本上已经固定好了,所以后期的布置,只能按照现有的结构去进行合理的布局,合理的利用好空间,合理的安排好收纳功能,合理的安排好行走的动线。从结构上跟我们国内的结构布局还是有所不一样,不过这套房子的采光效果确实不错。
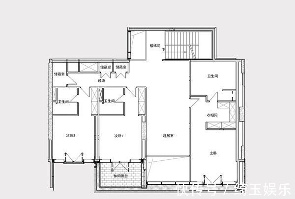
02平面布置图


一楼的布局主要是公共区域,门厅保持了很宽敞、舒适的空间,在这里没有做鞋柜,因为在他们看来,换鞋子是不在室内进行的,而是在室外,入户就应该保持敞亮的空间,这样才能让人一入户就感觉到惊艳,一楼除了公共空间之外,保留了一间次卧室和一间保姆房;二楼主要是休息区,设计了一个起居室,这样进卧室就有了个“缓冲区”,二楼的三间卧室都带有独立的卫生间。
03一楼客厅



客厅的大扇落地窗,给了空间很敞亮的效果,加上面积大,真的很舒适。沙发背景墙做的满墙护墙板,采用的深黑色,搭配上顶面的白色,形成了一个很鲜明对比的“黑白风”,电视墙用大理石材质,更显大气。85寸的电视悬挂在电视墙上,刚好合适,刚好“饱满”。
04一楼餐厅



在客厅电视墙后面就是餐厅空间,这个地方也不小,摆下一张八人位的圆桌,加上酒柜之后,留出来的过道还挺宽敞。玻璃酒柜门,增加了一份精致效果,咖啡色的餐椅靠背,很显档次。
05一楼次卧室


推荐阅读
- 屋主|新房装修,她直接拆掉12面墙体,虽不豪华,但足够舒适
- 装修|实木盲盒:黑胡桃床和床头柜
- 布置|125㎡现代轻奢,典雅怀旧、精致华丽,生活很有仪式感
- 华润|接连鲸吞两家大型物企,华润万象生活开年“买买买”意欲何为?
- 地块|宁波第三批集中供地:华润联合体16亿摘鄞州宅地,绿城落子镇海
- 多伦多|多伦多首次超过温哥华,成为加拿大房价最贵城市
- 农村|10套精品一层户型,农村养老房舒适比豪华更重要
- 别墅|晒晒中式轻奢风大别墅,装修豪华,300平花了60多万,值吗
- 陕西|深圳龙华实拍:大量工厂改成公寓,房租涨3倍,上班族直呼租不起
- 餐边柜+|178㎡现代美式,当美式遇上高级灰,营造简约华丽的美
