一个家庭装修的成败大多数都取决于装修风格的选定。越大的面积越不好决定装修风格。今天小编就为大家详细地介绍一下整整122平米的二居室,如何搭配成北欧风格。一起来看看这套装修设计实景图吧。
??

??
这样的空间设计简单实用。
??

??
大面积白色,点缀浅木色地板,干净利落,同时又有一定的空间温度。
??

??
非常地节约空间,用起来方便。
卧室的主要功能是休息,属于私人空间,所以卧室装修不必有过多的造型,卧室装修越简洁越好,墙壁可适当做些点缀,还要注意墙壁材料和家具的搭配得当。卧室装修设计风格可以根据窗帘、床罩等软装决定,它们的色彩影响了卧室的风格,装修的时候要格外留心。
??

??
空间感,简单舒服的床,浅色的硬包墙面;
??

??
白色的墙面,就是干干净净的墙;小空间就简单一些。释放出更多的空间。
卫生间在装修时,要考虑大功率电器的问题,需要为电热水器、智能马桶等设专用开关,同时还要有防水盒为宜,这样可以免去一些不必要的风险。同时通电线路最好是暗线,以免受潮漏电。
??

??
卫生间感觉整洁,磨砂隔断使空间干湿分区更好。
很多人追求简约大方,但是简约厨房不是说对厨房的实用功能让步,而是在设计中摒弃不必要的繁文缛节,留下最实用、本质的东西。
??

??
开放式厨房,餐厅和岛台合在一起
?
??

??
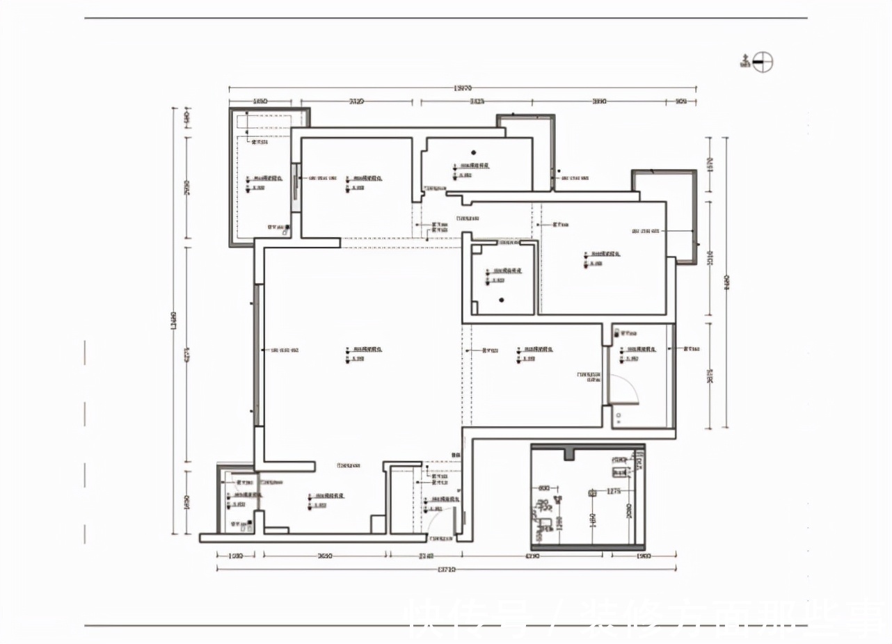
户型南北通透,温馨舒适,宜居
【 装修|122平北欧风二居室,一个开放式的大豪宅】
推荐阅读
- 家电|装修预算没省对地方,结果多花了一倍的钱
- 衣柜|新房入住半年,才发现这7个装修大坑,令人捶胸顿足!
- 装修|如何做二级吊顶装修室内安装二级吊顶好吗
- 布艺沙发|新房入住半年, 8大装修败笔让我后悔莫及, 希望大家别再犯了!
- hdmi线|装修记 篇七:家庭影院如何留线?5.1影音系统前期准备详解
- 家具|入住新房一年多,具有生活温度的22个装修设计经验
- 收纳|102平现代工业风格装修,给装修做减法,漂亮又大方的设计!
- 装修|90后家装"迷途":被坑、崩溃与幸福
- 传感器|智能家居 篇二:新房装修 米粉的购物车(三)
- 场域|这有3套不到35㎡的迷人小户型,个个都像小豪宅,装修太出彩
