133平米的房子受到了大家的广泛推崇,原因是这套房子设计新颖独特,功能间齐全,能满足日常生活的方方面面。本套房子的设计风格采用的是现代风格,户型是标准的三居室。

远离喧嚣的都市,灰色与白色相映衬,冷静沉着,暖光与地面灰色交织,塑造出温馨典雅的浪漫气氛。

墙面、地面、吊顶以及家具陈设乃至灯具器皿等均融入几何线条元素,以纯洁的质地、精细的工艺为其特征。

主卫选用干湿分离的淋浴房,金属线条的装饰增添更多的沉稳大气,墙面与地面采用了跳色设计,灵动活泼。

门口的人形雕塑打造时尚高级的气氛,餐桌上方使用不规则吊灯,为沉稳的空间增添一丝活泼灵动。

厨房与室内空间相协调,橱柜选择经典的灰色,台面选用白色大理石,便于打理,整体设计融入线条装饰会使格局更加清晰整洁。

对家具的选择和摆放要科学、合理,好的家具陈设有利于儿童的身心健康。简单的装饰搭配灵动的色彩更加温馨浪漫。

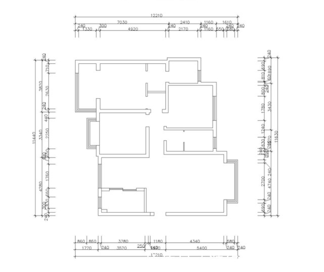
【 三居室|133平现代风三居室,灰色与白色相映衬,冷静沉着】户型南北通透,整体比较方正,应业主要走拆改的部分比较少
推荐阅读
- 隔断门|95平现代风三居室,一日三餐四季,充满家的仪式感与人间烟火色
- 挂画|108平现代风三居室,加入现代风格挂画,使客厅看起来更加饱满
- 业主|70平北欧风二居室,温馨却不失去格调
- 基调|110平现代风三居室,全屋以白色为基调阳光透进来,非常惬意
- 静宁|139平中式四居室,在现代城市塑造清然静宁、回归诗意的生活
- 高新|土地快讯:高新近三千平地块国有建设用地使用权拟被收回
- 购房|购房该如何选择?内行表示:“买三不买二、面积不超过110平”
- 实木|81平小户型,玄关道上做卫生间,坚持把冰箱放屋中间!贼好使
- 镜子|110平现代简约风三居室,温馨宁静的卧室设计太好了
- 装修|80平北欧风二居室,视觉清爽又梦幻
